Foto leveres af Google Street View og kan være upræcist:
Butik til salg, København S,
, 2300 København S- Butik til salg
- 148 m2
- 1.450.000 kr.
, 2300 København S
- Butik til salg
- 148 m2
- 1.450.000 kr.
FÅ MERE INFO OM LOKALET
Du linkes til en anden portal, som evt. kan kræve betaling eller oprettelse
Butik til salg, København S,
Fakta
- 300194
- Butik
- 148 m2
- 1.450.000 kr.
FÅ MERE INFO OM LOKALET
Du linkes til en anden portal, som evt. kan kræve betaling eller oprettelse
148m2 erhvervsandel/butik venter på sit næste eventyr!...
Velkommen til AB Chr. Svensensgården og det attraktive Holmbladsgade Kvarter...
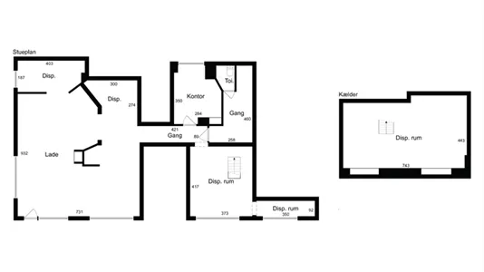
Et butikslokale på 148m2 med en en lang facade med mange vinduer mod Holmbladsgade beliggende på hjørnet af Holmbladsgade og Christian Svendsens Gade kan nu erhverves med henblik på drift af erhverv, fx butik, kontor eller lignende.
Til lokalet hører også en forholdsvis stor kælder der tilgås direkte fra forretningen via lem i gulvet til trappe. Lokalet sælges som udgangspunkt med de reolsystemer, alarm mm som befinder sig i butikken.
Lokalet kan IKKE omdannes til beboelse.
Ring påfor aftale om fremvisning.
Et butikslokale på 148m2 med en en lang facade med mange vinduer mod Holmbladsgade beliggende på hjørnet af Holmbladsgade og Christian Svendsens Gade kan nu erhverves med henblik på drift af erhverv, fx butik, kontor eller lignende.
Til lokalet hører også en forholdsvis stor kælder der tilgås direkte fra forretningen via lem i gulvet til trappe. Lokalet sælges som udgangspunkt med de reolsystemer, alarm mm som befinder sig i butikken.
Lokalet kan IKKE omdannes til beboelse.
Ring påfor aftale om fremvisning.
Information og data
Denne butiksejendom til salg ligger på Holmbladsgade i København S. København S har postnummeret 2300, og ligger i kommunen København, som ligger i København. Ejendommen er i alt 148 m2. Salgspris: 1.450.000 kr.